Proxecto de rehabilitación do antigo CER
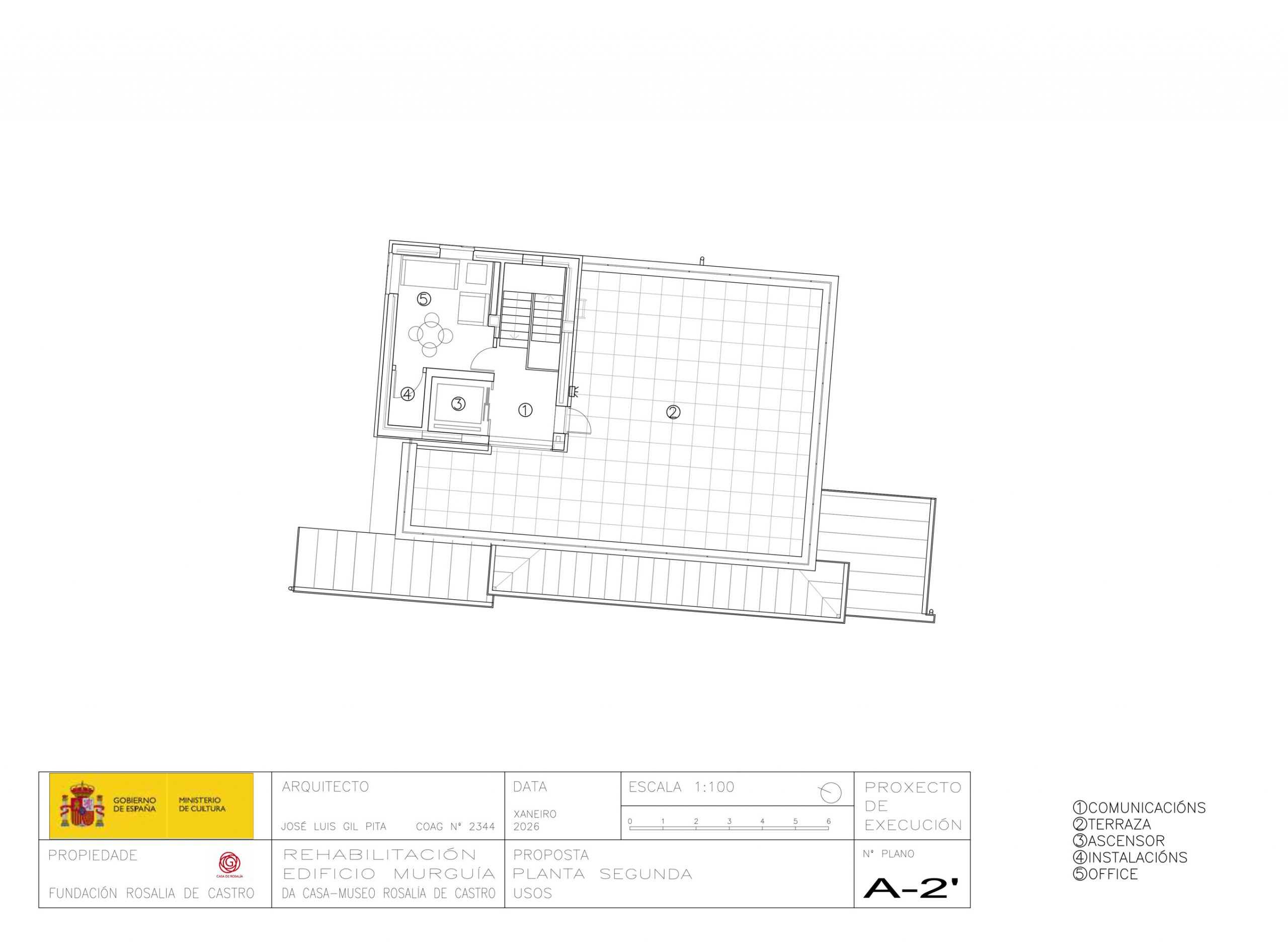
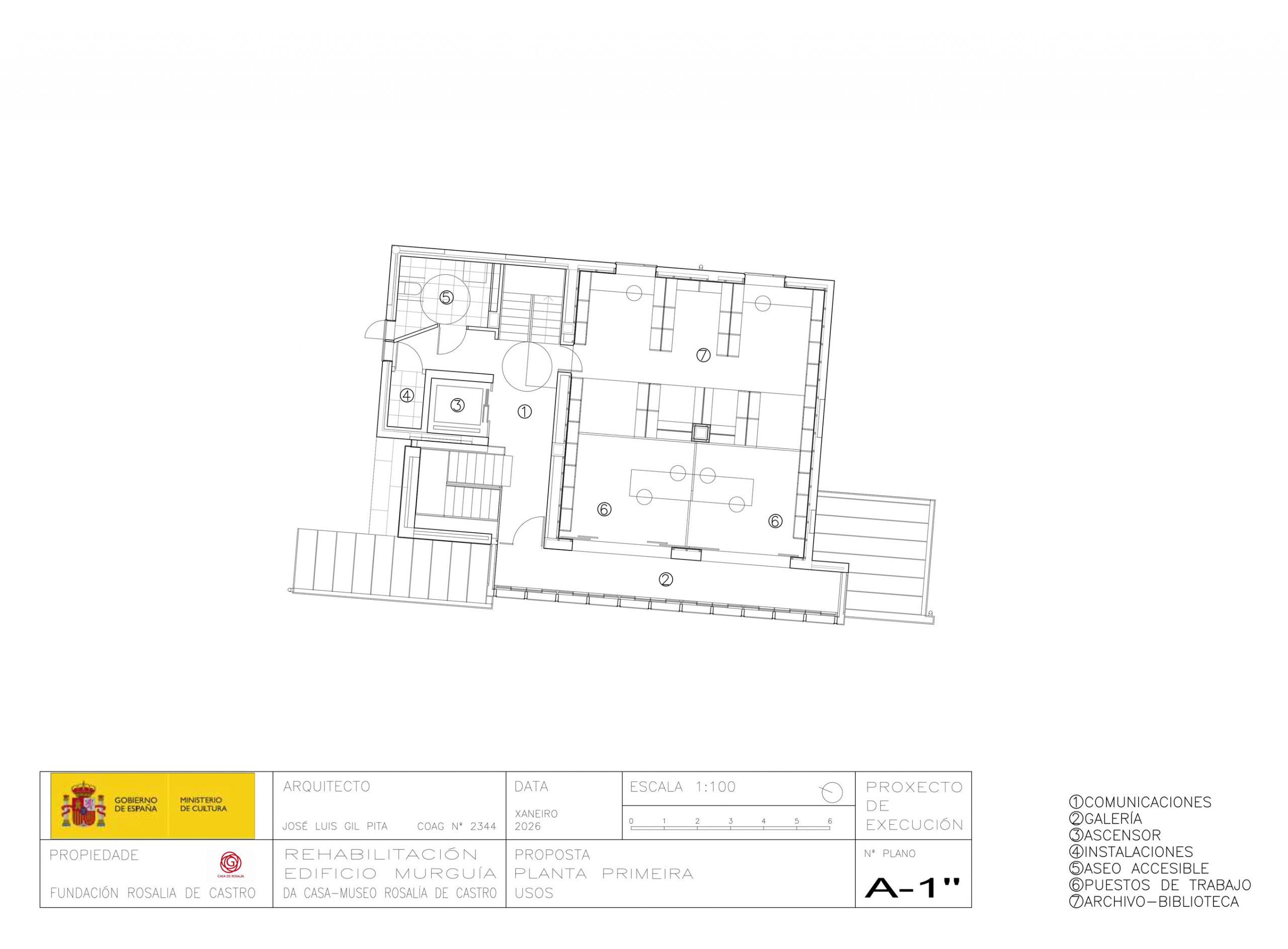
O Ministerio de Cultura financiou o proxecto de rehabilitación do antigo Centro de Estudos Rosalianos (CER), co obxectivo de albergar no futuro un centro cultural anexo á Casa-Museo con Biblioteca e usos expositivos, didácticos e administrativos.
Restaurar este edificio (o último que queda por reformar do conxunto da Casa-Museo) é unha das prioridades da Fundación Rosalía, dado que está en “situación de colapso”. Con esta obra, cuxo financiamento está a procurar nestes momentos a Fundación en todas as administracións, preténdese culminar todo un proceso de reformas: no museo, no xardín, no auditorio e nos edificios anexos.
A rehabilitación do CER é indispensable e urxente por tres motivos fundamentais: en primeiro lugar, porque é necesario conservar o patrimonio da Casa-Museo, tanto o patrimonio bibliográfico, documental e artístico, que neste momento se atopa nun estado lamentable, como o propio patrimonio arquitectónico que representa o edificio de Albalat.
En segundo lugar, para ampliar os espazos da Casa de Rosalía: espazos expositivos que sirvan de complemento; espazos pedagóxicos, dado que recibimos arredor de 7.000 visitas escolares ao ano; e espazos administrativos, debido ao considerable aumento da xestión necesaria para levar adiante os nosos proxectos. Neste sentido, o aumento e a diversificación das nosas actividades nos últimos anos foi manifesto.
E, en terceiro lugar, para culminar todo un proceso de reformas: no museo, no xardín, no auditorio e nos edificios anexos. É necesario, polo tanto, culminar este proceso e reforzar o prestixio dun espazo de memoria fundamental non só para Galicia, con presenza e impacto na literatura universal.
O proxecto de rehabilitación foi realizado polo estudo Gil Pita-Nieto Peñamaría Arquitectos e financiado polo Ministerio de Cultura.
Alzados
[Para abrir o navegador de imaxes, facer clic nalgunha delas]









